物件概要
宇部市妻崎開作 中古住宅
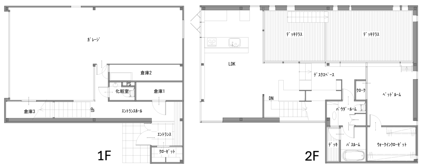
★インナーガレージ+デッキテラス付きのデザイナーズハウスです!

宇部市妻崎開作にあるデザイナーズハウスです☆
法人向けの事務所としても活用できます。
2Fには広大なデッキテラスもありゆったり過ごせる物件です!
| 所在地 | 宇部市妻崎開作247-12 |
| 価格 | 4,500万円(税込) |
| 間取り | 1LDK(1F:インナーガレージ+2F:デッキテラス) |
| 土地面積 | 173.01㎡ |
| 建物面積 | 154.32㎡ |
| 建物構造 | 鉄骨造 2階建 |
| 地目 | 宅地 |
| 都市計画 | 非線引区域 |
| 用途地域 | 準工業地域 |
| 建ぺい率 | 60% |
| 容積率 | 200% |
| 設備 | 上下水道 オール電化 バスルーム トイレ2カ所 |
| 小学校 | 黒石小学校 |
| 中学校 | 黒石中学校 |
| 築年月 | 2006年4月 |
| 引渡時期 | 相談 |
| 備考 | インナーガレージ(シャッター付き) デッキテラス ウォークインクローゼット デスクスペース |
| 仲介手数料 | 仲介手数料:要 |
| 取引態様 | 媒介 |










